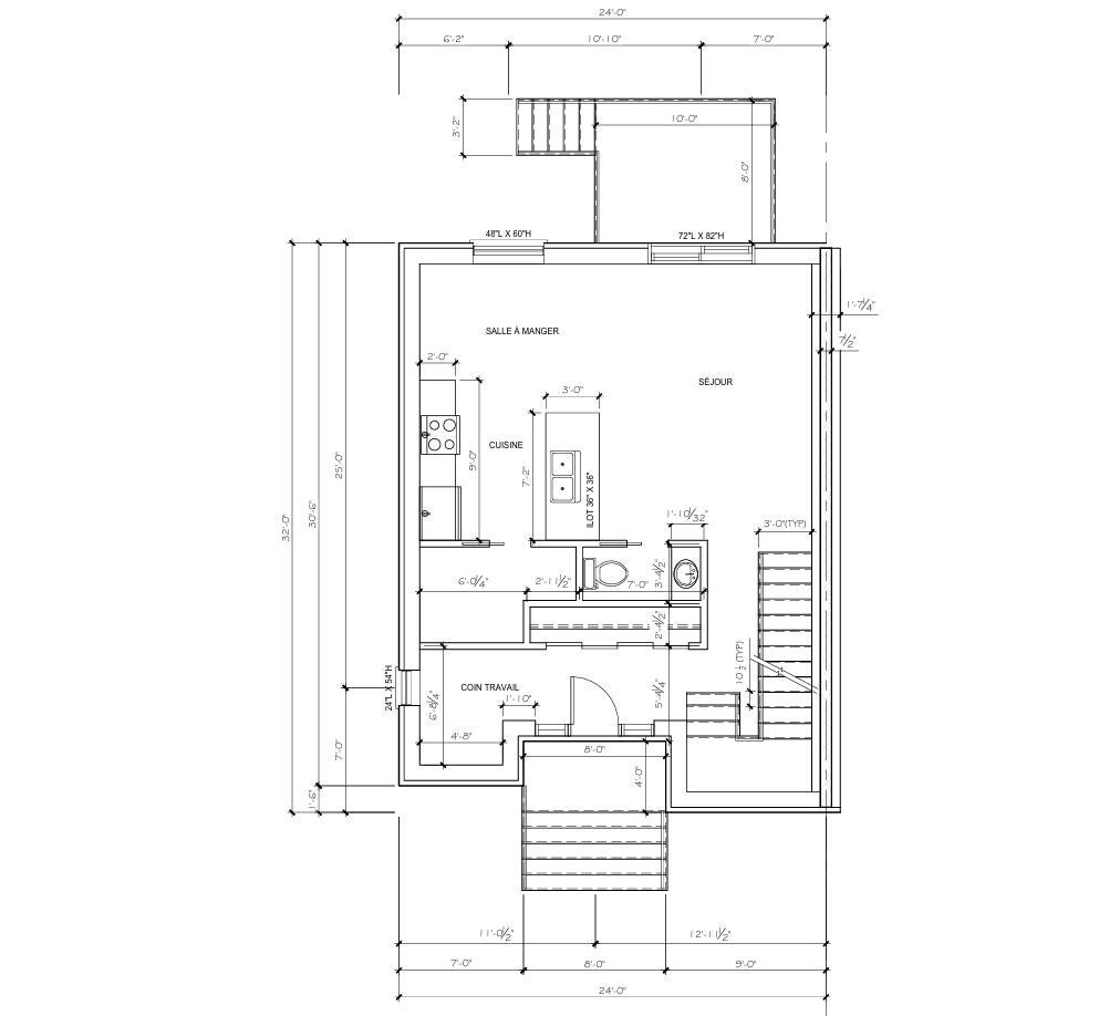
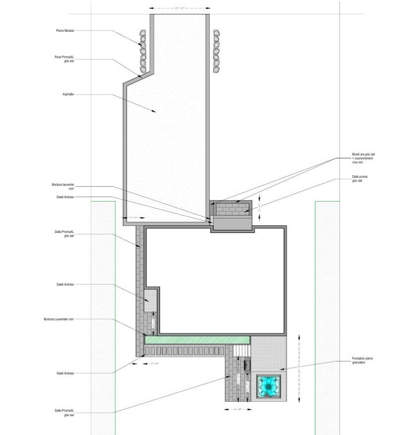
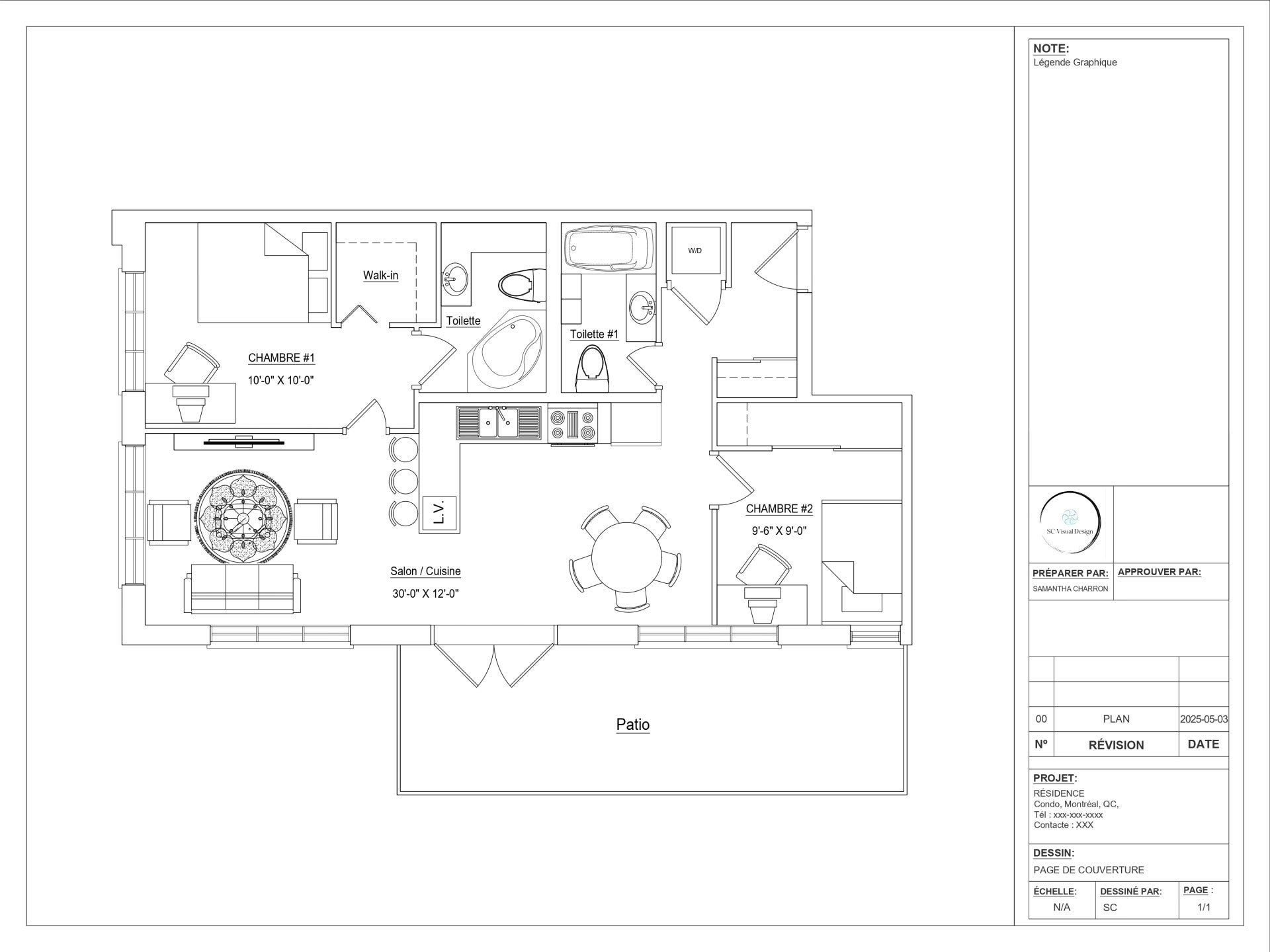
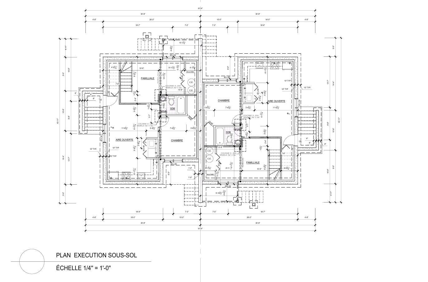
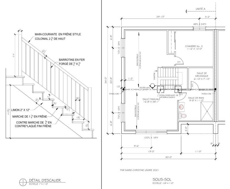
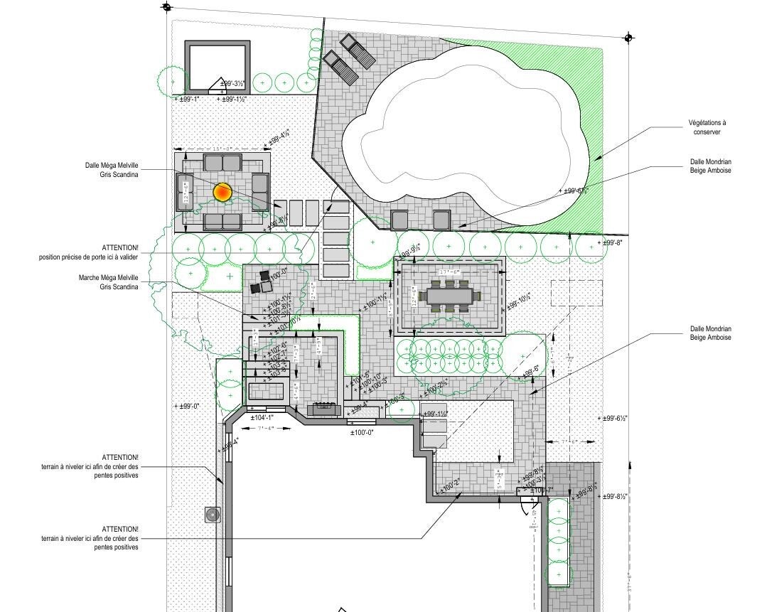
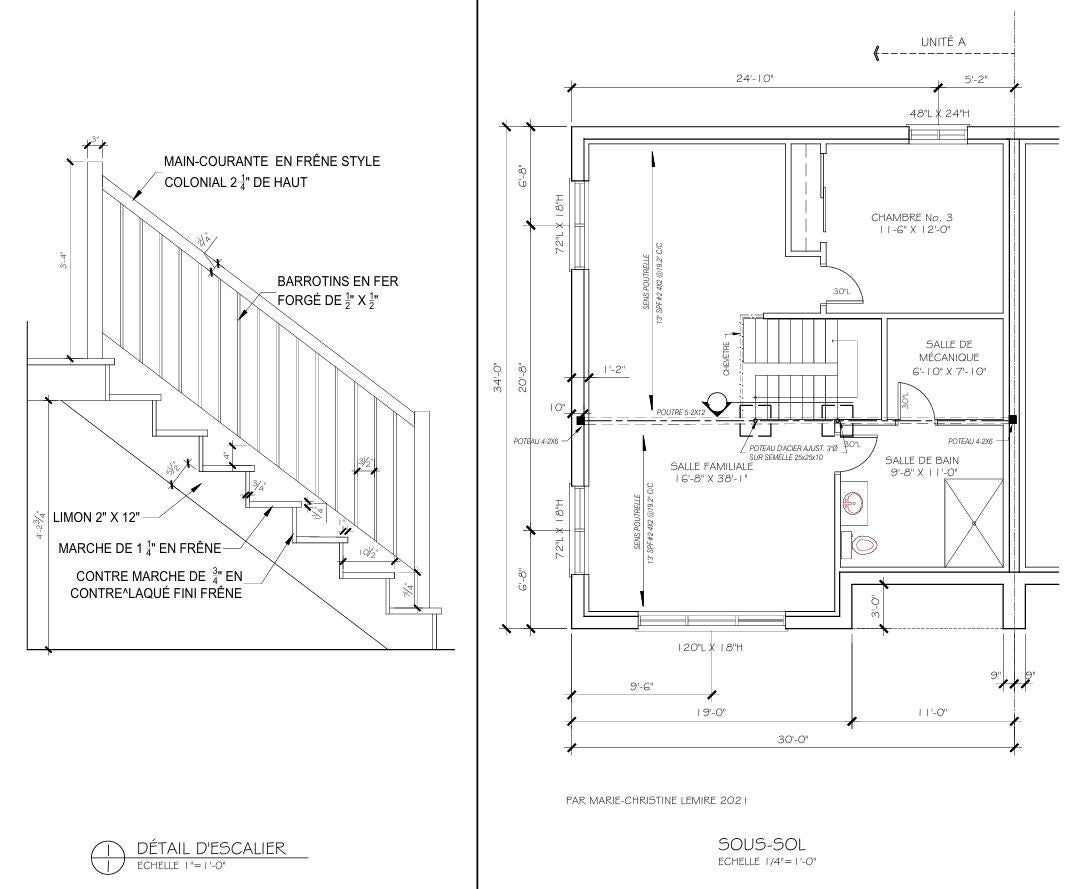
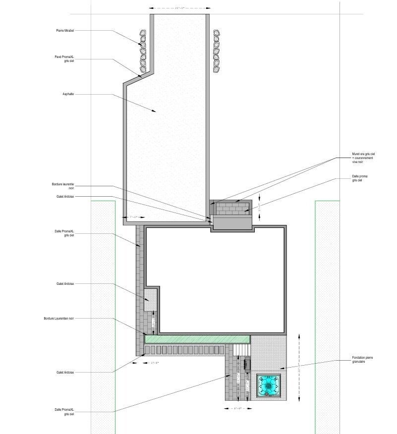
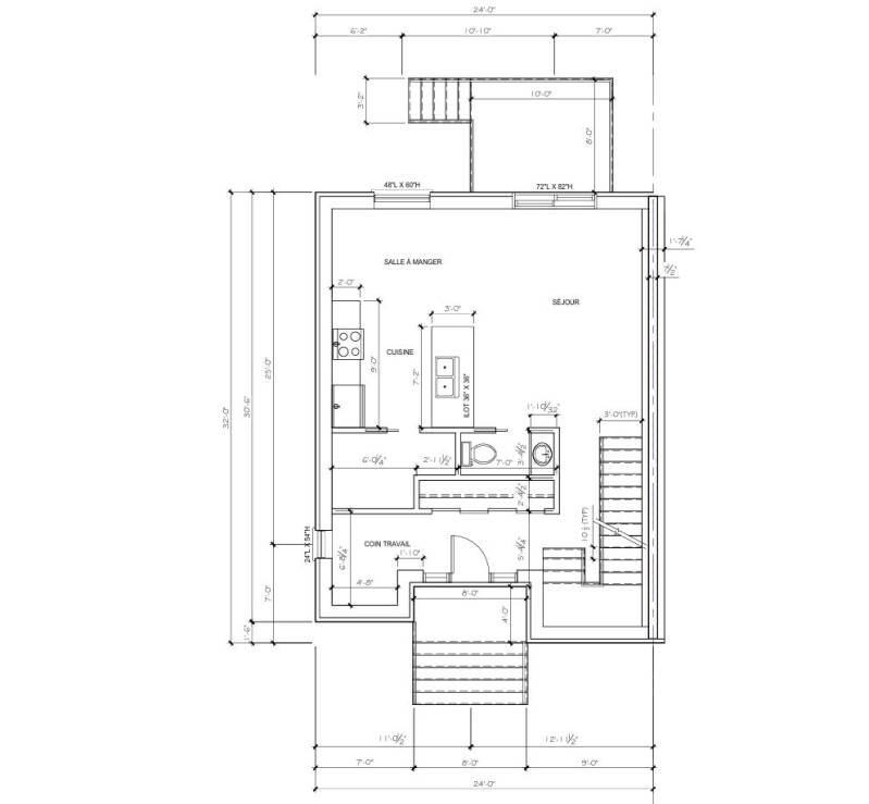
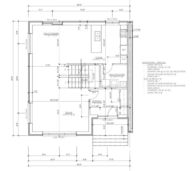
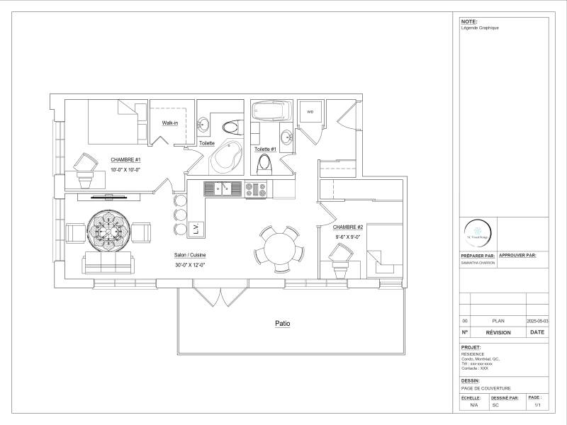
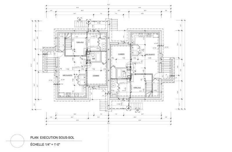
VISUALISATION 2D

Chez SC Visual Design, nous proposons des services professionnels en conception 2D, incluant la création d’objets, la modification de plans existants ou l’élaboration de nouveaux plans destinés à des projets de maison, Condo ou appartement. Nous offrons également des services de réaménagement extérieur : que vous souhaitiez agrandir votre jardin ou repenser l’aménagement de votre cour arrière.


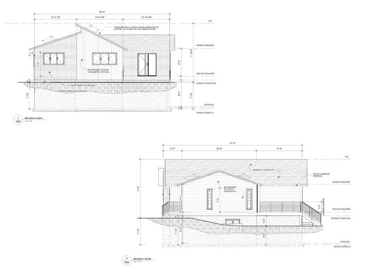
Rendus 3D

Découvrez le potentiel futur de votre projet grâce à nos rendus 3D d'une précision et d'un réalisme remarquables.
Ces visualisations de haute qualité donnent corps à vos concepts, vous offrant ainsi les bases nécessaires pour prendre des décisions stratégiques et réfléchies.

Prêt à transformer votre espace ?

Contactez-nous dès aujourd’hui pour discuter de votre projet et donner vie à votre vision.